В состав проекта домов из SIP (СИП) панелей входят следующие разделы:
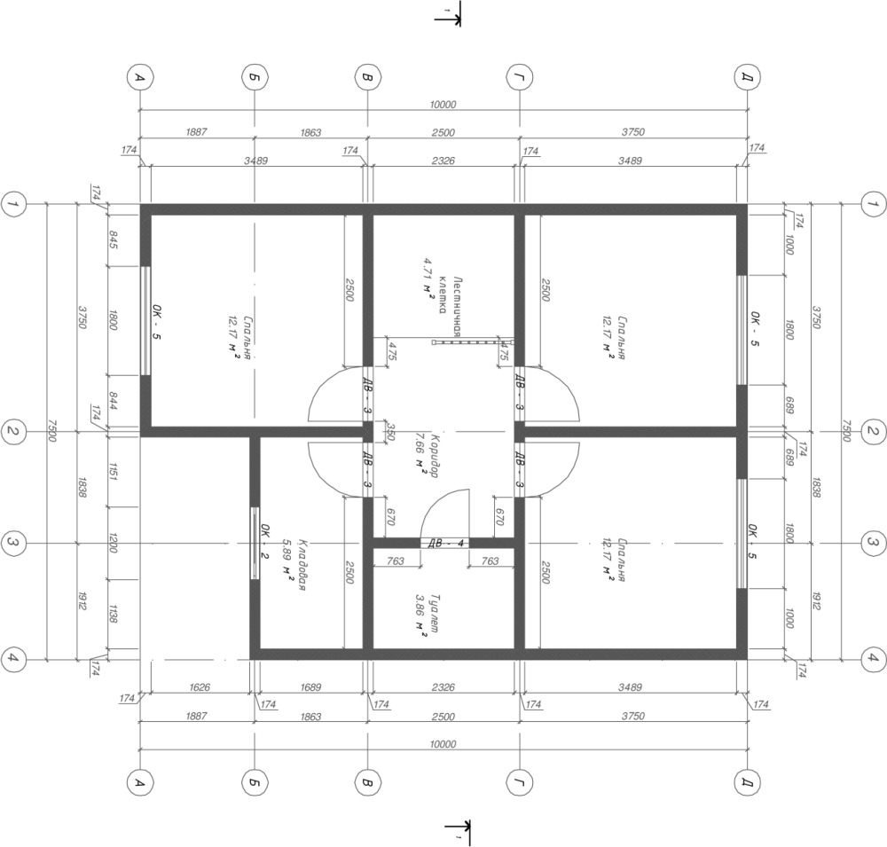
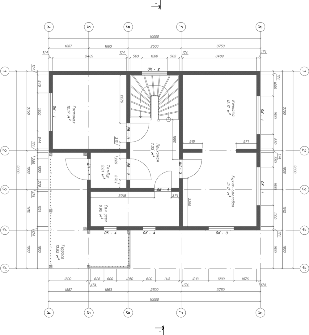
1) Архитектурное решение (АР), включающее в себя эскизы, планы, разрезы,
виды, экспликацию помещений, ведомость и схемы оконных и дверных
заполнений и пр.;
2) Конструкторское решение (КР) для строительства - рабочий проект,
3) Конструкторское решение-1 (КР-1) для производства
Компания Thermo House имеет большой штат квалифицированных
проектировщиков, позволяющий выполнить любую задачу по проектированию в
соответствии с пожеланиями заказчика и требованиями нормативно-технической
документации (СНиП, ГОСТы, СП), все работы ведутся с использованием
специального лицензированного программного обеспечения SEMA.
В состав проекта домов из SIP (СИП) панелей входят следующие разделы:
1) Архитектурное решение (АР), включающее в себя эскизы, планы, разрезы,
виды, экспликацию помещений, ведомость и схемы оконных и дверных
заполнений и пр.;
2) Конструкторское решение (КР) для строительства - рабочий проект,
включающий в себя следующие разделы:
Свайное поле
Схема расположения обвязочного бруса фундамента
Узлы фундамента
Схема расположения панелей цокольного перекрытия
Схема расположения балок цокольного перекрытия
Спецификации материалов на цокольное перекрытие
Схема расположения стен
Развертки стен
Спецификации материалов на стены
Схема расположения панелей перекрытия
Схема расположения балок перекрытия
Спецификации материалов на перекрытие
Схема расположения панелей чердачного перекрытия
Схема расположения балок чердачного перекрытия
Спецификации материалов на чердачное перекрытие
План крыши
Схема расположения опорных конструкций крыши
Схема расположения скатов крыши из СИП
Схема расположения стропил основного шатра крыши
Схема расположения элементов каркаса софитов
Схема расположения фронтонов
Схема расположения элементов каркаса межэтажного карниза фронтона
Сводная ведомость материалов
Конструкторское решение (КР) для строительства позволит Вам
самостоятельно собрать дом из СИП-панелей.
3) Конструкторское решение-1 (КР-1) для производства - рабочий проект,
который, включает в себя следующие разделы:
Раскрой панелей толщиной 224мм
Раскрой панелей толщиной 174мм
Спецификации панелей
Конструкторское решение-1 для производства - рабочий проект, который
позволит Вам произвести необходимые по проекту панели на любом подходящем
производстве в Вашем регионе.
Гарантия безопаности проведения сделки
Проект для самостоятельного монтажа дома
Раскрой и спецификациия панелей для производства
Все проекты проверены и реализованы на строительных площадках
Высоко-
квалифицированный проектный отдел
Архитектурный паспорт позволит быстрее оформить разрешение на строительство